Via Romolo Gessi, 49
20146 - Milano
Italia
Informativa sulla Privacy
Informativa sui cookie
Informativa Legale
BUSTO ARSIZIO (VA)
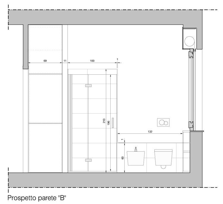
STANZA DA BAGNO
SOLUZIONE PER L'ABITARE QUOTIDIANO
2016
L'intervento in un appartamento riguarda la ristrutturazione della stanza da bagno padronale con uno stile minimalista e attenta ai dettagli.
Progettazione e realizzazione anche degli arredi contenitori.














Via Romolo Gessi, 49
20146 - Milano
Italia
Informativa sulla Privacy
Informativa sui cookie
Informativa Legale