Informativa sulla Privacy
Informativa sui cookie
Informativa Legale
BOVISIO MASCIAGO (MB)
NUOVE RESIDENZE
(con arch. G. Carbone)
2008
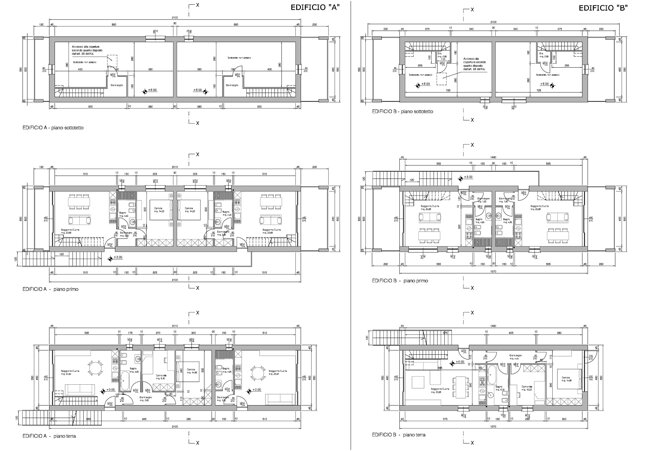
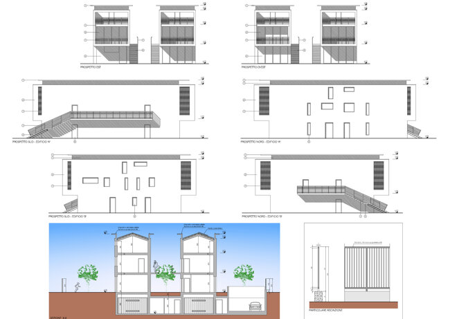
2 edifici rettangolari secondo il principio della composizione e del rispetto dei volumi semplici, evitando di inserire forme o corpi edilizi che alterino l’essenzialità della forma geometrica del rettangolo.
Anche nella costruzione dei prospetti, le aperture sono vincolate dalla forma del rettangolo e si dispongono quasi senza una logica, con l’intento di realizzare una parete scultorea che non è data da determinate simmetrie dei vuoti ma bensì dalla predominanza della superficie piena.
Gli edifici sono a due piani fuori terra e contengono n. 8 unità abitative, un piano interrato dove si collocano le autorimesse a servizio e i locali accessori (cantine, impianti tecnologici, locale immondezzaio, ecc.) nonché un piano sottotetto.
La distribuzione interna degli alloggi avviene secondo il principio dell’apertura dei locali verso est ed ovest, riducendo l'affaccio verso nord e diminuendo così la dispersione energetica.








